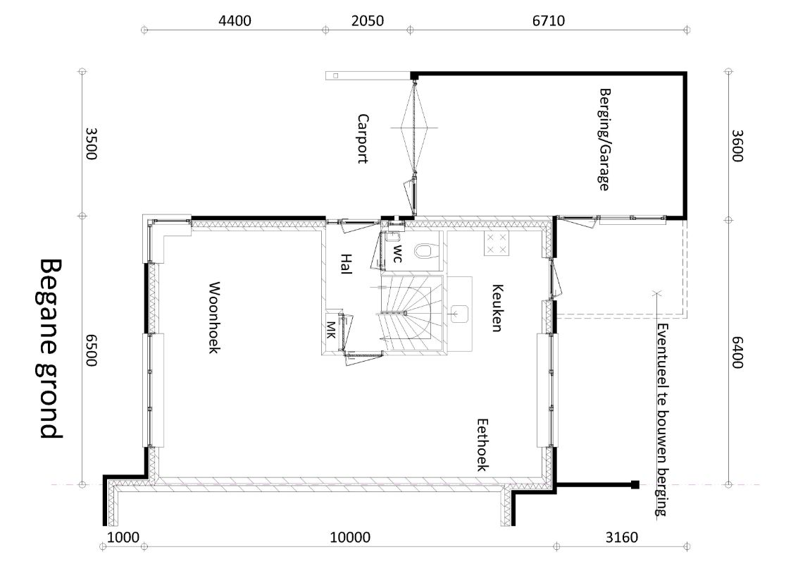
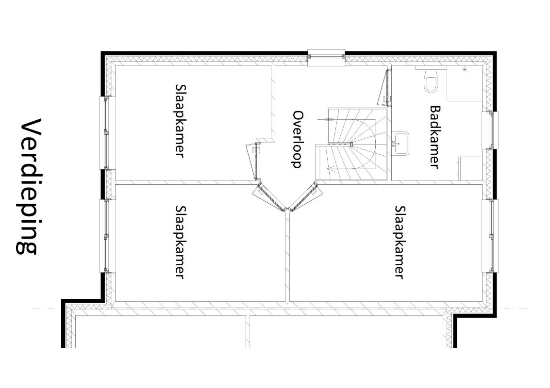
Woning type: Schellerberg
Alternatieve indelingen
Vanzelfsprekend is het mogelijk om uw persoonlijke wensen op een van onze basiswoningen toe te passen. Hierbij kunt u denken aan het verlengen en/of verbreden van de basiswoning, het aanbrengen van een erker, dakkapel of uitbouw. U kunt uw woning ook levensloopbestendig maken door een slaapkamer en badkamer op de beganegrond te creëren.
Maar er zijn in de afwerking van uw woning ook nog een groot scala aan mogelijkheden om uw woning op maat te maken aan de hand van uw persoonlijke wensen. Hieronder vindt u een aantal voorbeelden van dergelijke aanpassingen.
Tijdens een vrijblijvend gesprek kunt u uw wensen aan ons kenbaar maken, zodat wij een offerte op maat voor u kunnen maken.
























