2-onder-1-kapwoning
Type: Drienerlo
Bij bouwbedrijf Poppink zijn we trots om onze nieuwste 2-onder-1-kapwoning te introduceren: de Drienerlo. Deze woning kenmerkt zich door een strak, modern en rustig uiterlijk, perfect voor wie op zoek is naar een stijlvolle en eigentijdse leefomgeving. Met de woning Drienerlo bieden we u de mogelijkheid om uw droomhuis volledig naar eigen wens te realiseren.
Of u nu kiest voor een minimalistisch interieur, ruime leefruimtes of energiebesparende voorzieningen, wij zorgen ervoor dat uw nieuwe woning aan al uw verwachtingen voldoet. Bij Poppink combineren we vakmanschap met flexibiliteit, zodat uw nieuwe thuis net zo uniek wordt als uzelf.
Jouw droomhuis op maat
Bij bouwbedrijf Poppink zijn we trots om onze nieuwste 2-onder-1-kapwoning te introduceren: de Drienerlo. Deze woning heeft een strak, modern en rustig uiterlijk, perfect voor iedereen die op zoek is naar een stijlvolle en eigentijdse plek om te wonen. Drienerlo is meer dan alleen een huis; het is een plek waar je thuiskomt. Met zijn strakke lijnen en mooie materialen ziet het er niet alleen goed uit, maar voelt het ook meteen als jouw plek.
Het moderne design zorgt ervoor dat je woning eruitziet als een plaatje, zowel van binnen als van buiten. Bij de woning Drienerlo heb je de kans om alles naar jouw smaak in te richten. Wil je een minimalistisch interieur, grote open ruimtes of energiebesparende gadgets? Het kan allemaal. Bij Poppink vinden we het belangrijk dat jouw huis echt jouw thuis wordt, daarom kun je alles aanpassen zoals jij dat wilt.

Duurzaam en comfortabel wonen
Duurzaamheid en comfort gaan bij ons hand in hand. De Drienerlo kan je voorzien van de nieuwste technologieën die goed zijn voor het milieu én jouw portemonnee. Denk aan zonnepanelen en vloerverwarming. Zo woon je niet alleen comfortabel, maar ook duurzaam. Kiezen voor de Drienerlo is kiezen voor kwaliteit.
We letten op elk detail en zorgen ervoor dat alles perfect is. Zo weet je zeker dat je een huis krijgt waar je jarenlang plezier van hebt. Bovendien is het een slimme investering, want de waarde van je woning blijft behouden door de duurzame en moderne bouw.
Waarom Poppink?
Bij Poppink combineren we vakmanschap met flexibiliteit. Ons team van experts helpt je bij elke stap, van het eerste ontwerp tot de uiteindelijke oplevering. Met onze ervaring en passie voor bouwen zorgen we ervoor dat jouw droomhuis werkelijkheid wordt. Ben je nieuwsgierig naar de Drienerlo?
Kom dan eens langs bij een van onze modelwoningen en ervaar zelf hoe het is om hier te wonen. Neem vandaag nog contact met ons op voor meer informatie over de Drienerlo of een vrijblijvend gesprek. Bij Poppink maken we jouw woondromen waar.
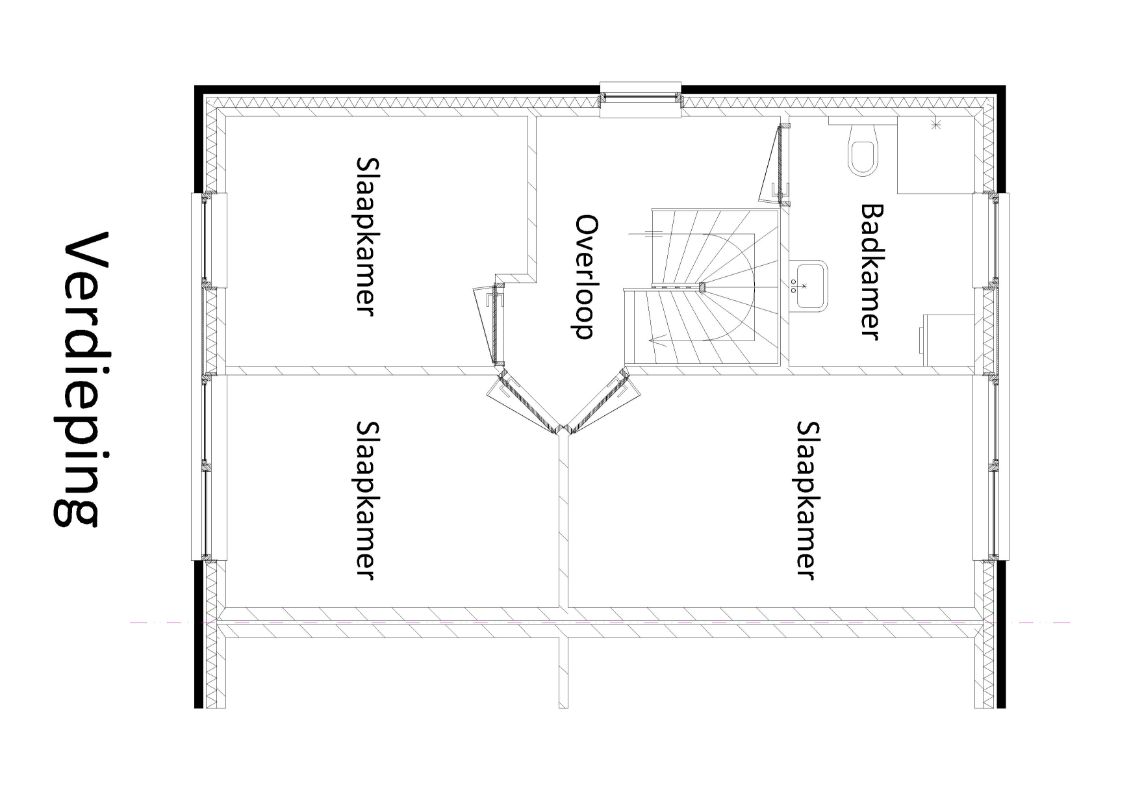
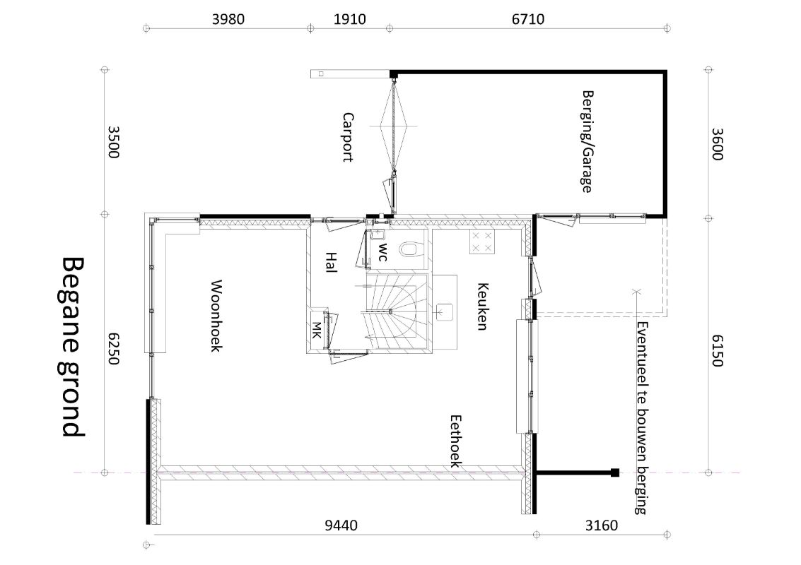
Alternatieve indelingen
Vanzelfsprekend is het mogelijk om uw persoonlijke wensen op een van onze basiswoningen toe te passen. Hierbij kunt u denken aan het verlengen en/of verbreden van de basiswoning, het aanbrengen van een erker, dakkapel of uitbouw. U kunt uw woning ook levensloopbestendig maken door een slaapkamer en badkamer op de beganegrond te creëren.
Maar er zijn in de afwerking van uw woning ook nog een groot scala aan mogelijkheden om uw woning op maat te maken aan de hand van uw persoonlijke wensen. Hieronder vindt u een aantal voorbeelden van dergelijke aanpassingen.
Tijdens een vrijblijvend gesprek kunt u uw wensen aan ons kenbaar maken, zodat wij een offerte op maat voor u kunnen maken.
























